ブログ
住まいの豆知識から
暮らしのヒントなどご紹介
このブログ記事もおすすめ!
注文住宅の間取りの決め方は?後悔しないためのチェックポイント

こんにちは🌞広報の中村です!
注文住宅の家を建てるとき、夢が膨らむ楽しみでもあり、失敗すると取り返しのつかないという悩みの種になるのが「間取り」です。家族にとって快適で素敵なお家をつくるために、考えるべきポイントは数多くあります。
この記事では、間取りを決める前にやっておきたい準備から、失敗しないために網羅したい具体的なチェックポイント、実際の間取り実例をご紹介します。
注文住宅を検討している方のヒントになれば幸いです😊
目次
Plan1 パティオと暮らす、光であふれる2階建ての家【4LDK】
Plan2 勾配天井と畳コーナーでくつろぐ平屋【3LDK+畳コーナー】
間取りを決める前に必要な準備

理想の間取りを考える前に、まずは準備が大切です。家族のライフスタイルや将来の暮らし方、土地の条件などをしっかり整理しておくことで、間取りの打ち合わせがスムーズに進み、後悔の少ない家づくりにつながります。準備を怠ると、せっかくの注文住宅でも暮らしに合わないといった失敗につながる可能性があります。
ここでは、間取りを決める前に確認しておきたい事前準備のポイントを3つご紹介します。
家族のライフスタイルを把握する
間取りを考えるうえで最も重要なのは、家族の暮らし方を正しく把握することです。
普段どの部屋でどんな時間を過ごすのか、家族構成が変わる可能性はあるかなど将来的な面も含めて整理しておくと、間取りの方向性が見えてきます。
例えば、リビングで家族が集まる時間が多い家庭なら、広いLDKを優先した間取りにすると満足度が高まります。逆に個々の時間を大切にしたいなら、プライベート空間を重視した間取りが適しています。
希望条件の優先順位を決める
注文住宅ではやりたいことが多くなりがちですが、すべてを盛り込むと予算オーバーや間取りの不自然さにつながります。
そのため、希望条件はあらかじめ優先順位をつけて整理することが大切です。
例えば、家事ラク動線を最優先にしたいという希望や、収納量は妥協できないという希望など、家族で話し合って順位を決めておくと、設計打合せもスムーズに進みます。
優先順位を明確にしておくことで、取捨選択がしやすくなり、結果として満足度の高い家づくりにつながります。
土地条件と間取りの相性を考える
どんなに理想的な間取りを描いても、土地の条件と合わなければ実現は難しくなります。
土地の広さや形状、周辺環境(日当たり・風通し・隣家との距離など)を考慮しながら間取りを考えることが大切です。
例えば、南側に隣家が迫っている土地では、リビングを2階に配置することで日当たりを確保できるケースもあります。
土地と間取りの相性を意識すれば、実際の暮らしやすさを高めると同時に、家の性能を十分に活かすことができます。
間取りづくりを成功させるためには、家族のライフスタイルを把握し、希望条件に優先順位をつけ、さらに土地条件との相性を考えることが欠かせません。これらを整理しておくことで、理想と現実のバランスを取りながら計画を進められます。準備をしっかり整えておけば、設計士や工務店との打ち合わせもスムーズになり、家族にとって本当に暮らしやすい間取りが見えてきます。
間取りで失敗しないための10のチェックポイント

注文住宅の間取りは、柔軟に設定できるため満足度が高い一方で、実際に住み始めてから「もっと収納が欲しかった」「動線が悪くて家事が大変」「外からの視線が気になる」など、後悔の声も少なくありません。ここでは間取りを考えるときに必ずおさえておくべき10のチェックポイントをまとめました。動線・収納・採光・風通しなど、暮らしに直結する視点を事前に確認しておくことがマストです。
(1)動線
暮らしやすい家は無駄のない動線が必要不可欠です。
部屋から部屋への移動がスムーズだと、家事の効率が上がるため生活にゆとりが生まれます。
人気な例で言うと、お風呂・洗面・ランドリーなどの水回りをまとめることで脱衣・洗濯・乾燥まで少ない移動で完結させることができます。また、キッチンもつなげると料理の待ち時間に他の家事もできる家事ラク動線になります。
このように、動線の工夫で少ない移動・少ない時間で家事が行える快適な暮らしにつながります。
(2)安全性と利便性
安全性と利便性を両立させることで、安心な我が家になります。
日常生活でのケガの予防や、小さい子どもがいる子育て世帯や高齢者にとっても安心して長く住める家になります。
例えば、部屋間の段差を減らしたり、階段に手すりを設置したりバリアフリーを意識することが大切になります。
幅広い世代にとってやさしいお家づくりがポイントになります。
(3)収納の位置と収納量
収納は量も大切ですが、位置も非常に大切です。
物を使う場所の近くに収納があると出し入れも楽、片付けるのも楽で、散らかりにくい家になります。
例えば、玄関近くに土間収納を設けてアウトドア用品を、キッチンの隣にパントリーを設けて食品をといったように、収納の設置場所も意識しましょう。
適切な場所に、適度な量の収納を確保することで暮らしが整います。
(4)コンセント
コンセントの配置も生活の快適さを左右するポイントです。
必要な場所にないと延長コード等使用することになり、見た目や安全性も損なわれてしまいます。
キッチン家電用、掃除機用、スマホの充電用など、用途に応じて設置しておくと便利です。
先を見越したコンセント計画で、暮らしのストレスの原因を減らすことができます。
(5)音やにおい
音やにおいの伝わり方を考えた間取りも考えておくべきポイントです。
家族それぞれのプライバシーを守り、生活の不快感を減らすことができます。
寝室をキッチンやトイレから離れたところに設置すると、音やにおいの影響を受けにくくなり、おすすめです。
部屋の用途をしっかりと考えて配置することで家族みんなが気持ちよく暮らすことができます。
(6)採光
採光計画は家の明るさと心地よさを決めます。
自然光を取り入れることで、昼間の照明が不要になり健康にも良い影響があります。
南向きのリビングに大きな窓を設ければ、1日を通して明るさを感じることができます。ただし、夏の猛暑で熱も取り込みやすくなる場合があるので窓ガラスの種類も考慮する必要があります。
光の入り方を考えた間取りで、明るく快適な住まいが実現します。
(7)風通し
風通しの良い家は年間を通して快適な家になります。
空気がこもらないため、湿気やにおいを自然に逃がすことができます。
窓の反対側に窓を設置すると、風の通り道ができるためきれいな空気を効率よく取り込むことが率よく取り込むことができます。
新鮮な空気で健康的で心地よい暮らしにつながります。
(8)窓からの眺め
窓からの眺めは暮らしの満足度を高めます。
視線が外に抜けると、室内が広く感じられる開放感がありゆったりとした空間になります。
例えば、庭の緑や遠くの景色が見える窓は日常に癒しを与えてくれます。
窓の配置や形を意識して居心地の良さを実現しましょう。
(9)外部からの視線
家族のプライバシーを守るために、外部からの視線を考慮する必要があります。
仮に人目が気になるとカーテンを閉めることになるので明るさや開放感が激減してしまいます。
人の目に触れる道路近くの窓は高い所に設置するなどして採光を確保しつつ視線を遮るようにするのが効果的です。
視線対策をして、安心して快適に暮らすことができます。
(10)外観
外観は家の第一印象を決める大切な要素のひとつです。
デザイン性だけでなく、周囲との調和やメンテナンスのしやすさにも関わります。
例えば、シンプルな形にすると長く飽きのこない、メンテナンスのしやすい家になります。
外観は見た目と実用性の両立を意識して計画することが大切です。
(6)以降の窓に関する項目は、スタッフブログの【家づくり初心者のための窓選び超入門】でも解説しています。ぜひご覧ください😊
間取り実例
お客様にご提案させていただいた間取りの実例のうち、2つご紹介します。
HPに【間取り実例】のページもあるので、あわせてチェックしてみてください。間取りを考えるヒントになるはずです✨
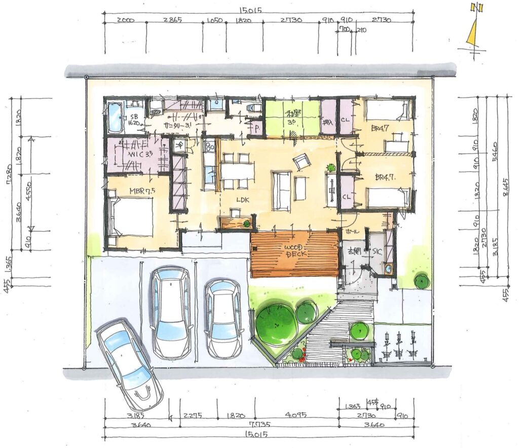
Plan1 パティオと暮らす、光あふれる2階建ての家【4LDK】

✓FCL(ファミリークローゼット)
玄関からつながる位置に大容量のFCLがあります。帰宅後すぐに上着やバッグを収納でき、片付けがしやすい動線になっています。
✓LDK
リビング・ダイニング・キッチンが一体化しているため広々とした印象になります。
キッチンは家族の様子を見渡すことができ、料理をしながらもつながりを感じられます。
背面にパントリーを備えているため、収納にも困りません。
✓家事ラク動線
お風呂・洗面・ランドリーなどの水回りをまとめた人気の動線です。
✓パティオ
パティオとは屋根がない中庭のことを表します。このお家はそのパティオにテラスを設置しています。(Instagramにもポストがあるのでチェックしてみてください^^)
自然光や風を取り込みやすくなります。また、窓越しに緑を眺めることもできます。
周囲からの視線を気にせずに使うことができる屋外空間で、子どもの遊び場や、家カフェの時間を楽しんだり、洗濯物を干したりなど、多目的に使うことができます。
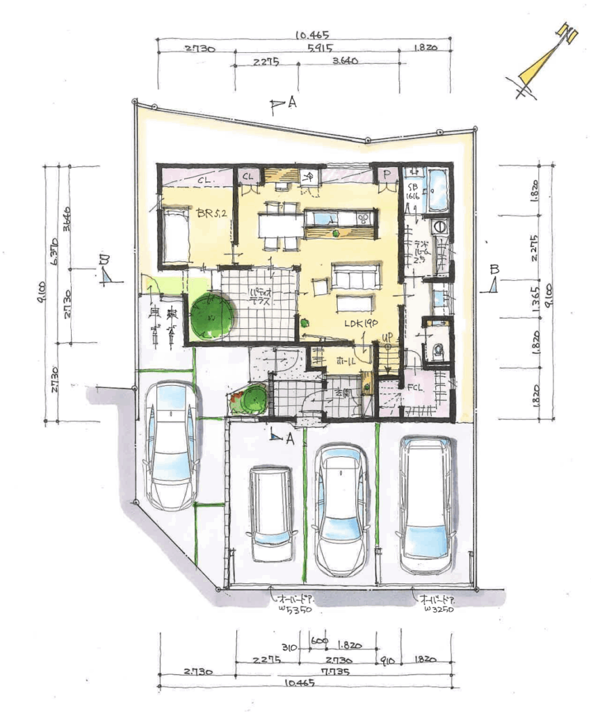
Plan2 勾配天井と畳コーナーでくつろぐ平屋【3LDK+畳コーナー】

✓SIC(シューズインクローゼット)
靴を履いたまま出入りできる収納があります。
玄関ホールから直接LDKに入るルートとSICを通ってからはいせるルートがあり、外出時・帰宅時の動きやすさに貢献しています。
✓LDK
南側に大きな窓があり、採光と開放感が抜群です。
畳コーナーがつながっており、ドアを開けておくとより広く感じられる設計になっています。
✓家事ラク動線
WIC(ウォークインクローゼット)が通り抜けできる設計で家中をぐるっと回ることができる動線になっています。移動の時短になります。
✓ウッドデッキ
壁を設置して外部からの視線を遮ることができるプライベートな空間です。ペットがいるご家庭で、家の中にいながらのびのびと遊ぶことができます。
まとめ
注文住宅の間取りづくりは、夢を形にする楽しさがある一方で、実際に暮らしてみて、後からもっとこうすればよかったと感じやすいポイントでもあります。
だからこそ、事前の準備をしっかり行い、10のチェックポイントも押さえておくことが大切です。
実例でもご紹介したように、家事ラク動線で生活を効率化したり、収納や視線の工夫で快適さを高めたり、パティオやウッドデッキで暮らしに広がりを持たせたり、工夫次第で「住みやすさ」は大きく変わります。
間取りは一度建ててしまうと簡単に変えられないからこそ、家族のライフスタイルに合った設計をじっくり検討することが、後悔しない家づくりの秘訣です。
この記事が、皆さまの理想の住まいづくりに少しでもお役に立てば嬉しいです😊
素敵なふつう
今回使用した画像は、イチマルホームが実際に担当させていただいた住宅です。
イチマルホームは岡山県内全域での施工実績があります。些細なことでも、気になる点がございましたら、お近くの店舗(赤磐店・岡山店・総社店・倉敷店がございます)にお電話やメール、SNSでのご連絡等で、お気軽にご相談ください!いっしょに考える総合的なお手伝いをさせていただきます。
2025.10.16
✍️関連ブログのご紹介
平屋か二階建てか…のお話→どっちがいい? 二階建てと平屋を見比べられるモデルハウス
仏間の間取りのお話→「仏間」の間取りはどうする?!仏壇のレイアウトは?
注文住宅の魅力のお話→イチマルホームが考える、注文住宅の「3つの魅力」
このブログ記事もおすすめ!




