イチマルから
皆さまへ
お知らせ・
イベント情報
最新情報ラインナップ
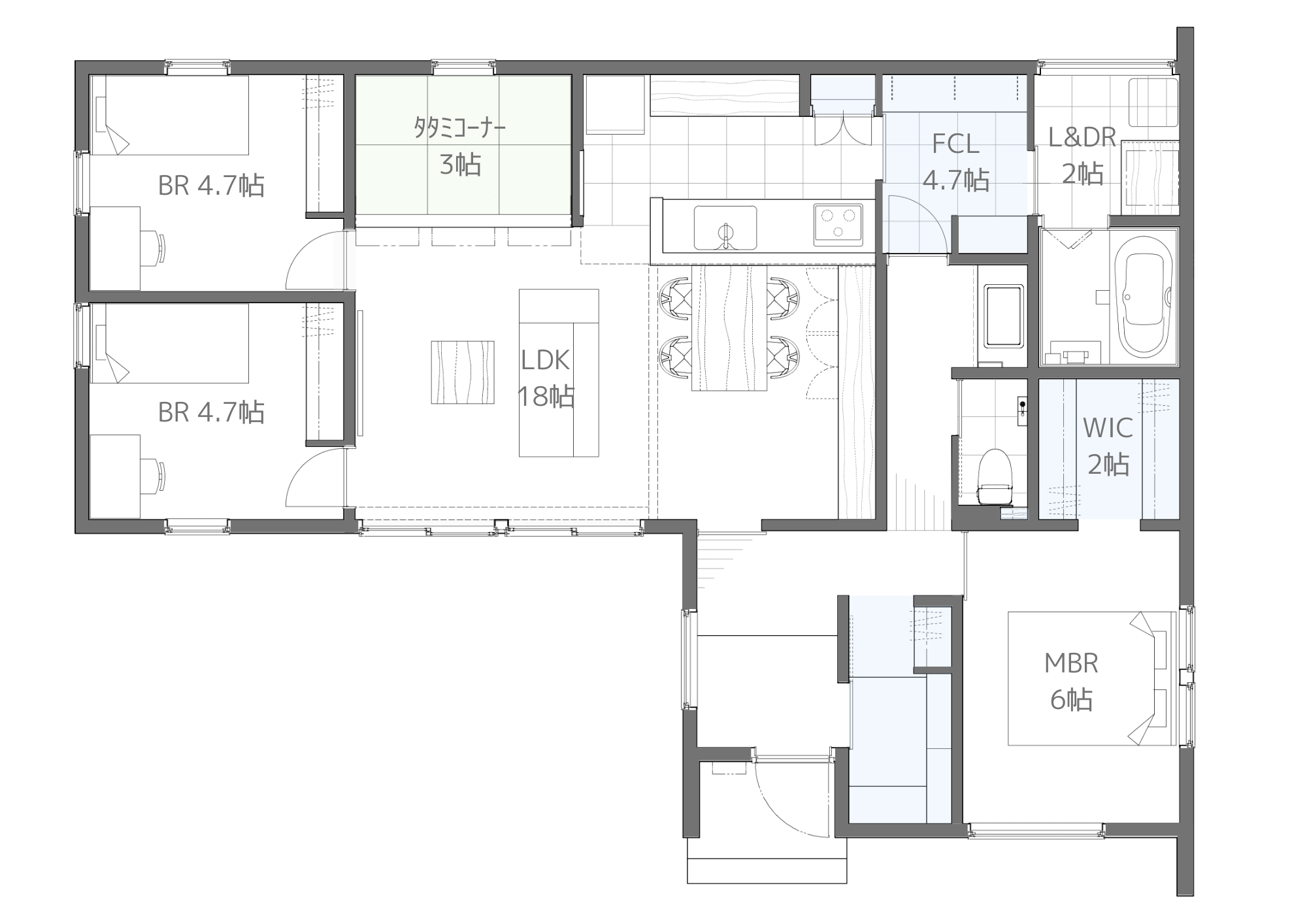
平屋の新築戸建て物件のご紹介

―自然素材に癒される心地よい平屋―
▼物件情報
販売価格:4,380万円(税込)
間取り:3LDK
敷地面積:187.17m²(約56.60坪)
延床面積:91.91m²(約27.80坪)
建築年月:2025年7月
耐震等級:3相当
断熱性能等級:6(UA値:0.44 C値:0.29)
▼設備情報
ガスコンロ、システムキッチン、カウンターキッチン、食器洗い乾燥機、シャワー・バス・トイレ別、室内洗濯機置き場、TVドアホン、プロパンガス、公営水道、排水下水、駐車場有、駐輪場、専用庭
▼交通
JR赤穂線大多羅駅 徒歩22分(1700m)
▼学校区
小学校:茶子山小学校 徒歩14分(1000m)
中学校:旭東中学校 徒歩33分(2400m)
▼アピールポイント
●照明・カーテン(全室)・エアコン3台付
●外構施工済。並列で3台駐車可
●ガス乾燥機「乾太くん」9㎏デラックス設置
●無垢材(タモ)の床
●開放感のある勾配天井
●小上がりタタミスペース(3帖)あり。引き出し収納付き
【20帖超の広々LDK+勾配天井と大開口窓で、明るく開放的】

広いLDKは家族が集まってもゆったり過ごせる空間。勾配天井が高さと奥行きを演出し、大きな窓から光がたっぷり入るため、室内全体が明るく開放感にあふれています。
【タモ無垢床と天井突板で、木の温もりを感じる上質な内装】

床には耐久性の高いタモ無垢材、天井には同素材の突板を採用。自然な木目や質感を存分に楽しめ、室内全体に温かみと上質感を与えます。
【小上がり和室と充実収納(SCL・ファミリーCL・WIC)を完備】

リビングに隣接した小上がり和室は、くつろぎや子どもの遊び場として活用可能。土間収納、ファミリークローゼット、ウォークインクローゼットなど、多彩な収納で家族の荷物もすっきり整理できます。
【独立造作洗面+ガス乾燥機「乾太くん」で家事ラク設計】

造作の独立洗面コーナーにより、洗面・身支度の使いやすさを確保。さらにガス乾燥機「乾太くん」を導入することで、雨の日や夜間でも効率よく洗濯物を乾かせ、家事負担を軽減します。
【ハイドアで空間に洗練をプラスした、シンプル快適な平屋】

天井まであるハイドアが室内の縦の広がりを強調し、空間に洗練された印象をプラス。シンプルで統一感のあるデザインと機能性を両立させ、快適に暮らせる平屋になっています。
▼フォトギャラリー






お問い合わせ
株式会社イチマルホーム岡山店
〒700-0936 岡山県岡山市北区富田400-1
TEL:086-206-5009
ご予約・ご相談等、お気軽にご連絡ください。
見学のご予約は下記カレンダーからも受付中です。
- 会場MAP
- 予約状況&予約
最新情報ラインナップ




